Porzione di casa in via Mole Nuove

In vendita
Porzione di Casa
Casalvieri
80.000 €
Descrizione
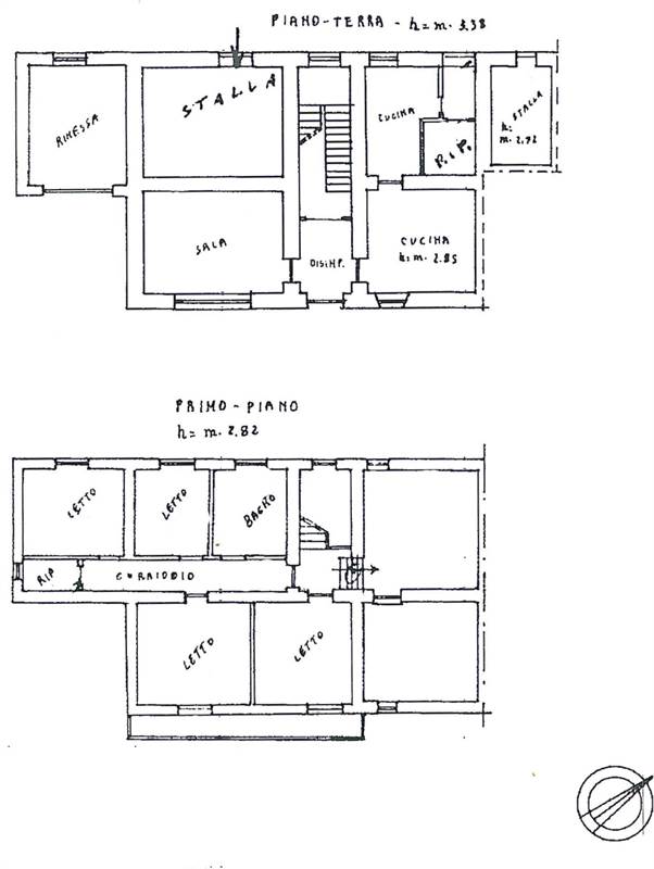
Casalvieri, in via Mole Nuove, vendesi casa semindipendente con terreno. L’abitazione, di 300 mq sviluppati su due livelli, è composta al piano terra da: ingresso, ampio salone, cucina abitabile principale collegata ad una seconda retrostante, locale cantina e bagno; il secondo piano, adibito a zona notte, è composto da 4 camere da letto matrimoniali, da due bagni e da ulteriori due vani. L'immobile è dotato di un comodo garage e, retrostante l’edificio, sono presenti due rimesse agricole, per un totale di 200 mq circa. Completa la proprietà in vendita un lotto di terreno circostante, di circa 8000 mq, completamente pianeggiante.
La casa necessità di interventi di ammodernamento.
Da sottolineare, infine, la vicinanza all’ingresso della superstrada Sora-Cassino e la facilità di raggiungere tutti i servizi, negozi e supermercati, vista la poca distanza da Atina inferiore.
Piacere Casa è a disposizione per ulteriori informazioni o per visite guidate.
Caratteristiche principali
Codice:
V000243
Città:
Casalvieri
Categoria:
Porzione di Casa
Locali:
12
Camere:
4
Bagni:
2
Mq:
300
Balconi:
1
Piano:
1
Classe energetica:
In fase di valutazione
Mappa
via Mole Nuove - Casalvieri (FR)
Planimetrie
Cookie preference